Zum Inhalt springen

GASI-MUSEUM

Foto-Impressionen

Beschreibung

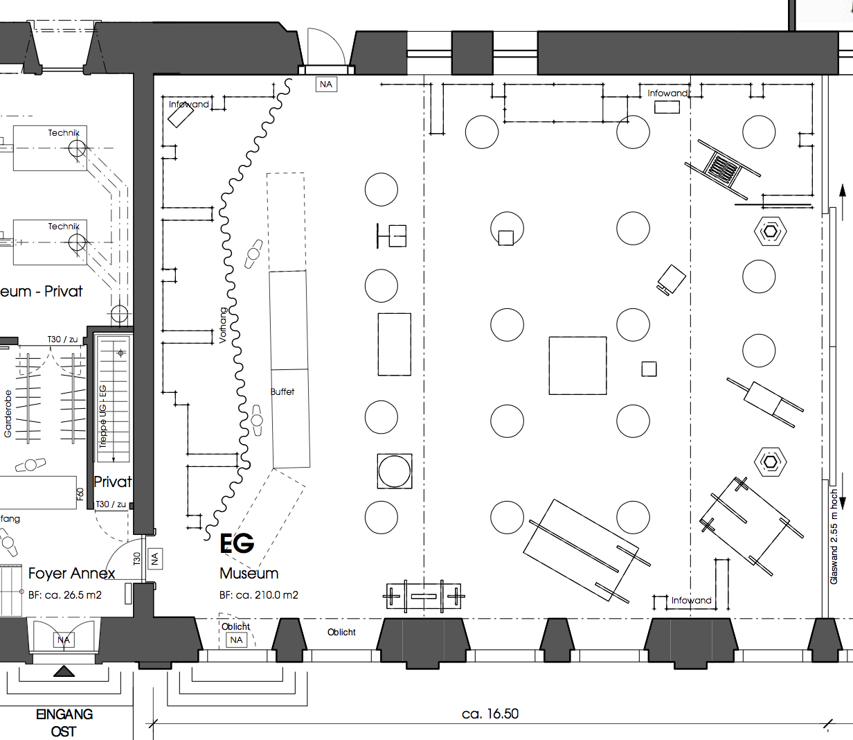
Das GASI-MUSEUM befindet sich im EG. Es ist der grösste Raum im ganzen Ensemble. Direkt am BELLTREE TOWER angebaut bietet die ehemalige Kraftzentrale, Raum für Festlichkeiten und Bankette: Essen bis circa 120, Konzertbestuhlung 150 und Stehapéros bis circa 240 Personen. Für Business-Seminare und dgl. stehen Verdunkelungs- und Leinwandinstallationen zur Verfügung.

Grundriss